Nuestro sitio web utiliza cookies para mejorar y personalizar tu experiencia, así como para mostrar anuncios (si los hay). Nuestro sitio web también puede incluir cookies de terceros, como Google Adsense, Google Analytics y Youtube. Al utilizar el sitio web, aceptas el uso de cookies. Hemos actualizado nuestra Política de privacidad. Haz clic en el botón para consultar nuestra Política de privacidad.

Casa La Nina en Miramar



El recorrido que se puede observar desde dibujar con lápices y escalímetros a tener en cuenta los aportes de la “inteligencia artificial” nos hace sentir que han pasado milenios mientras desayunábamos.

Con lo que contar historia, presente y futuro de un proyecto, ya no es una tarea estandarizada.

Vamos por lo esencial. El terreno está en el Barrio Parquemar, en la Ciudad de Miramar, Provincia de Buenos Aires, Argentina.

Es un barrio abierto, con casas de un segmento medio, donde gran porcentaje de las viviendas están habitadas todo el año.

Una de las características predominantes es el techo a dos aguas. Nuestra propuesta “azotea”, lejos de pretender diferenciarnos, tiene que ver con generar diferentes vínculos visuales, con el barrio, con los vecinos, y casi con el mismo mar, que finalmente siempre termina siendo el elemento determinante en estas localidades.

En cuanto a morfología, y en cuanto a elementos seleccionados para la obra, no nos alejamos en absoluto de lo que se puede denominar “construcción tradicional”. Esto es, una clásica platea, también clásica estructura, paredes y tabiques divisorios con materiales de los más comunes en la construcción.

LEER  Los ecuatorianos retornados a su país no eran turistas, sino migrantes

Sí evaluamos el también clásico “oeste”, en cuanto a la exigencia que puede significar la incidencia del sol y la necesidad de aplicar aislantes térmicos en algunas paredes perimetrales para reducir el costo que puede significar la refrigeración.

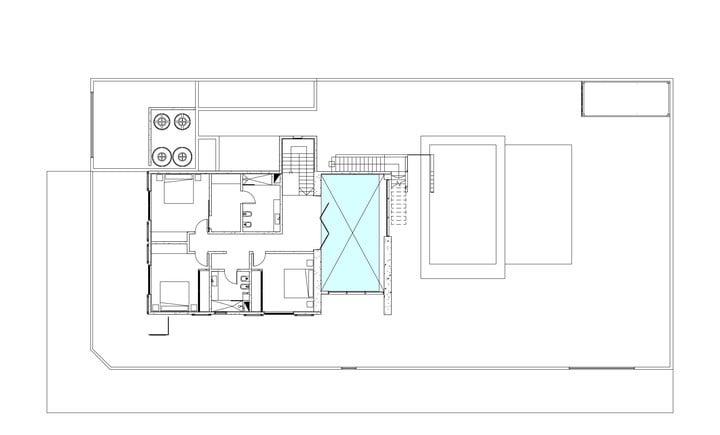
Casa La Nina Planta bajaCasa La Nina Planta baja

Precisamente en ese sector ubicamos la piscina y también una “cascada artificial” que actuará a manera de filtro y significará una importante colaboración a la climatización.

También están previstas diferentes formas de utilización de energías alternativas, esto es, están consideradas las implementaciones de paneles solares, termotanques solares y generadores eólicos. Con lo que se proyecta una reducción importante en el consumo de energía de red. A lo que sumamos la implementación de un biodigestor para disminuir el impacto de elementos residuales.

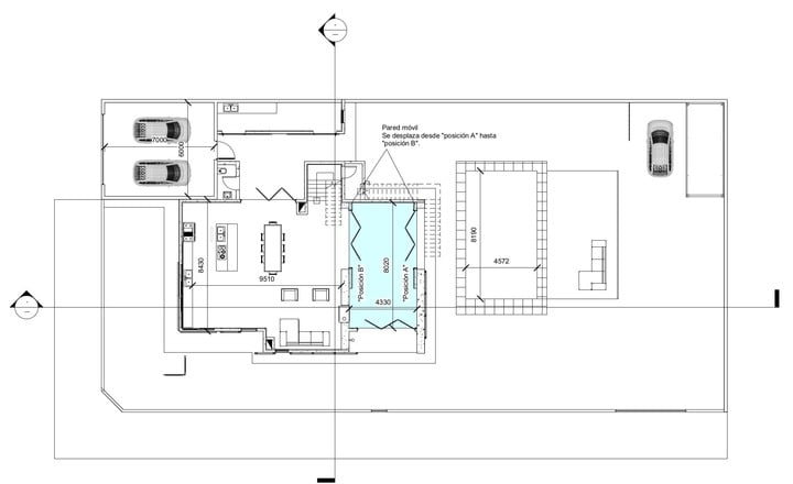
Casa La Nina Planta altaCasa La Nina Planta alta

Esto es, a lo que conocemos acerca del vínculo entre la vida humana y los efectos de la misma en relación al planeta que habitamos, intentamos proponer “habitar y cuidar”.

LEER  Desempleo, costo de vida y corrupción: preocupaciones de los millennials

Estas actitudes referidas a la sustentabilidad, no las consideramos ya una novedad, sino parte de todos y cada uno de los proyectos que abordamos.

De ahí es que surgen las consideraciones sobre aberturas DVH, paneles verdes, y otros detalles.

Continuando con nuestra línea de investigar permanentemente, es que se fue gestando esta nueva propuesta: la de adaptar el volumen de la vivienda de acuerdo a la cantidad circunstancial de habitantes.

Si bien dijimos que están habitadas gran parte del año, también conocemos que las viviendas de estas localidades turísticas tienen “invitados” en épocas veraniegas.

Con lo que es probable que en algún momento una o dos personas estén en la casa, y en otro momento el número puede ser de ocho personas. Y este proyecto viene a presentar una respuesta a ese tipo de situaciones.

En este caso la solución que elegimos fue la de una pared de posición variable, que nos permite integrar otro ambiente a la vivienda.

Algo tan sencillo como es desplazar una pared, nos permite una variación de volumen de 216 m3. Lo que equivale al volumen que demandarían seis dormitorios, por ejemplo.

LEER  todo queso y nada de carne

A partir de la propuesta inmediatamente aparece otro aspecto de la realidad, que es una natural resistencia a cambios aún no legitimados. Cuando consolidamos el Estudio LP decidimos que uno de nuestros ejes sería el arriesgar.

Las ideas que hoy podemos disfrutar se pudieron materializar gracias a que alguien asumió el riesgo antes. Y además ya sabemos que el tiempo es oro.

En definitiva, teníamos que “mover la pared” ahora, asumiendo el riesgo. Y estamos orgullosos de estar llevando a cabo este proyecto.

Ubicación. Barrio Parquemar, Ciudad de Miramar, Buenos Aires Proyecto y Dirección. LP Estudio de Arquitectura (Fernando Puente, Arquitecto, Pedro Puente Sotelo, Lic. Seguridad e Higiene y Federico Puente, Cálculo estructural) Superficie del terreno. 795,50 m2 Superficie obra. 357 m2 Año. 2023

Por Susana Villanueva